11025 McVicker AvenueChicago Ridge, IL 60415



Mortgage Calculator
Monthly Payment (Est.)
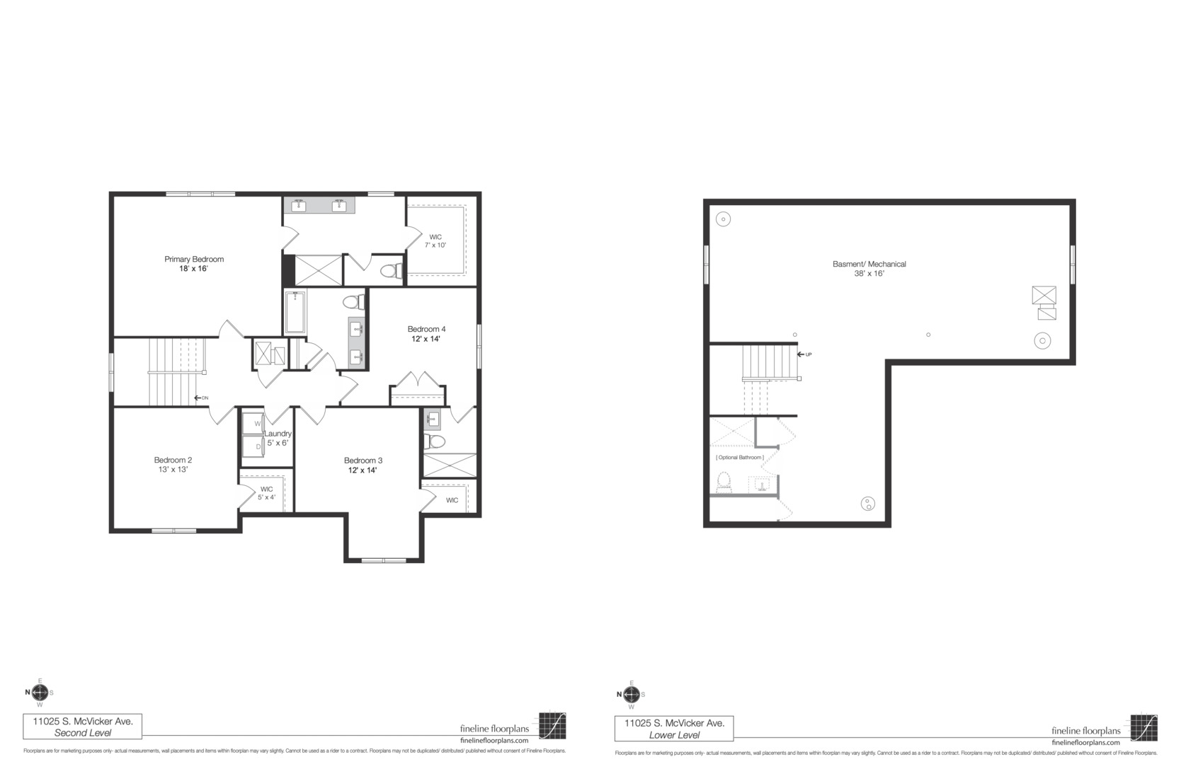
$3,193SOPHISTICATED NEW CONSTRUCTION single-family home, situated on a dead-end street, the first to be delivered a four-home development. This thoughtfully designed 4-bedroom, 3.1-bath residence with a 3-car garage, offers premium finishes, 4" wide, red oak hardwood flooring throughout. Upon entry, you're greeted by a light filled foyer and main level study. The living and dining area designed for entertaining, featuring stainless steel KitchenAid appliances, a 7-foot island, pantry, and dinette. The expansive adjoining family room, complete with a fireplace, provides a warm and inviting setting for relaxing evenings. Elegant lighting and a built-in speaker system add a touch of luxury and function throughout. Upstairs a bright and airy staircase leads to 4 generously sized bedrooms, 2 of which are ensuite, custom closets, an additional full bath, and laundry room.
| 2 days ago | Listing updated with changes from the MLS® | |
| 3 days ago | Status changed to Active | |
| a week ago | Listing first seen on site |
Based on information submitted to the MLS GRID as of 2025-12-10 03:25 AM UTC. All data is obtained from various sources and may not have been verified by broker or MLS GRID. Supplied Open House Information is subject to change without notice. All information should be independently reviewed and verified for accuracy. Properties may or may not be listed by the office/agent presenting the information.
Last checked: 2025-12-10 03:25 AM UTC
MRED DMCA Copyright Information Copyright © 2025 Midwest Real Estate Data LLC. All rights reserved.







Did you know? You can invite friends and family to your search. They can join your search, rate and discuss listings with you.