841 N Lombard AvenueOak Park, IL 60302




Mortgage Calculator
Monthly Payment (Est.)
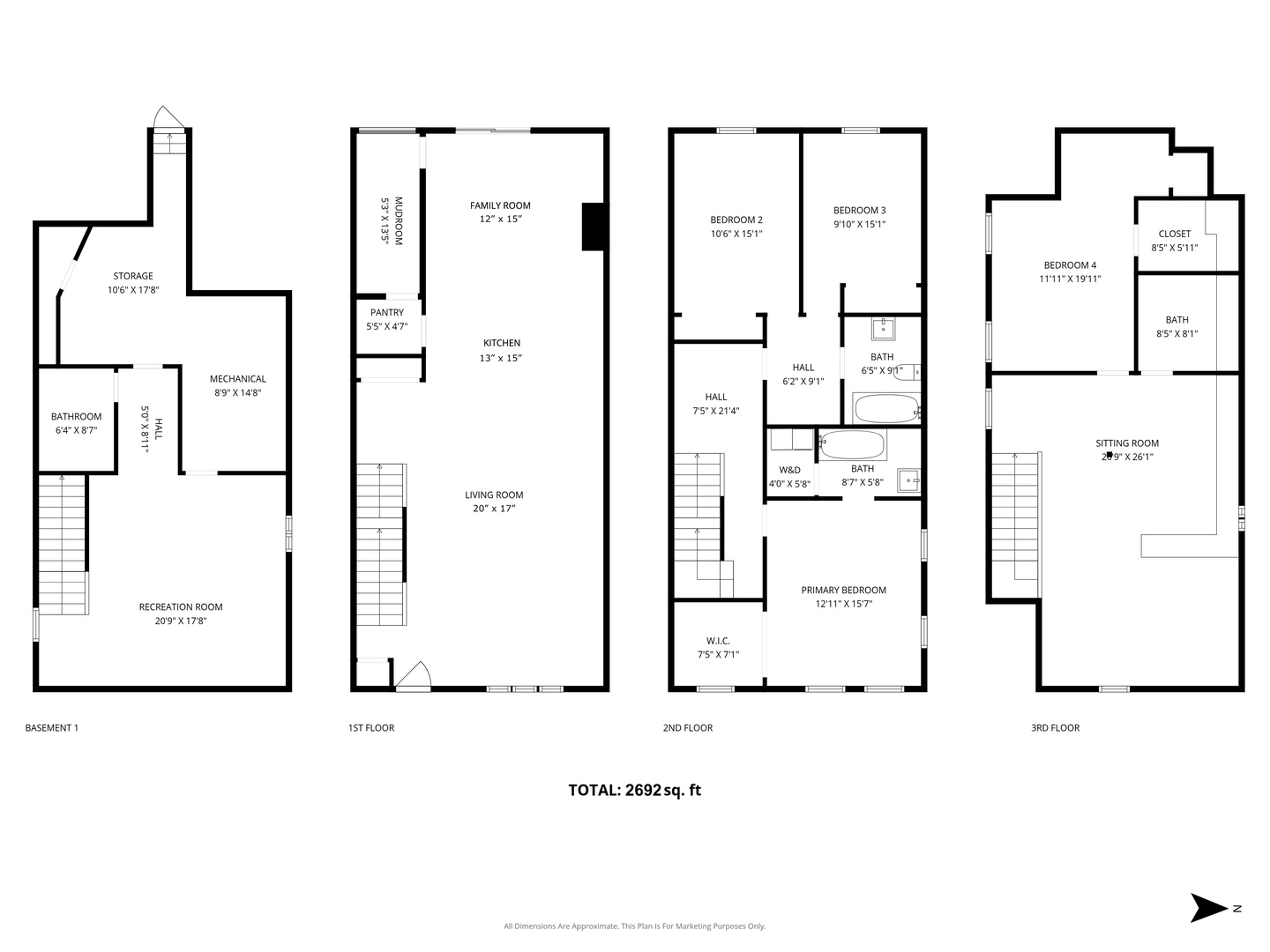
$2,372Don't miss this high upside renovation opportunity ideally suited for completion before the Spring market. This property has already undergone the most labor intensive phases and is fully gutted and professionally framed providing a true blank canvas ready for final finishes and strong ROI potential. All architectural plans and permits have been approved by the village and will transfer to the next owner eliminating costly delays. Electrical and plumbing rough ins are complete allowing immediate progress into the finishing stage. A list of pre purchased materials including cabinets doors and hardwood floors can be included in the sale reducing both cost and lead time. The fire sprinkler system is installed. Underground piping requires an upgrade and a permit is already in place to begin excavation so the system can be tested and approved by the Fire Marshal. This project offers momentum efficiency and significant upside. Contact the Listing Agent today for details.
| a week ago | Listing updated with changes from the MLS® | |
| a week ago | Status changed to Active | |
| 2 weeks ago | Listing first seen on site |
Based on information submitted to the MLS GRID as of 2026-01-27 09:21 PM UTC. All data is obtained from various sources and may not have been verified by broker or MLS GRID. Supplied Open House Information is subject to change without notice. All information should be independently reviewed and verified for accuracy. Properties may or may not be listed by the office/agent presenting the information.
Last checked: 2026-01-27 09:21 PM UTC
MRED DMCA Copyright Information Copyright © 2026 Midwest Real Estate Data LLC. All rights reserved.







Did you know? You can invite friends and family to your search. They can join your search, rate and discuss listings with you.